NSP基礎鋼製型枠は全国展開で基礎鋼製型枠ではトップクラスです

金物屋ネット
お問い合わせ


いい物を安く
提供致します
NSP鋼製型枠販売の店長
基礎鉄筋加工
基礎鉄筋加工
NSP鋼製型枠
NSP基礎鋼製型枠を使うことによって
基礎工事の簡素化と工期の大幅な短縮を図るとともに、正確で美しく仕上げられます。さらにNSP基礎鋼製型枠を使うことによって繰り返し使用できる経済性など数々の特徴を備えた住宅用基礎鋼製型枠です。
NSP基礎鋼製型枠の特徴
工期の短縮
午前中に型枠の組立てを行い、午後からコンクリート打ちが出来ます
耐久性はバツグン
特殊仕様の亜鉛鉱版を使用していますので、耐久性は優れています。
人手不足の解消
組み立てはハンマー一つで、解体はバール一つで、どなたでも簡単に作業ができます。
NSP基礎鋼製型枠

NSP基礎鋼製型枠の現場写真
 NSP基礎鋼製型枠の巾止金具の取り付け方   NSP基礎鋼製型枠の角コーナーの納まり図
  NSP基礎鋼製型枠   NSP基礎鋼製型枠

   
図面でのお見積り依頼は kana-ahy@agate.plala.or.jp 

NSPの基礎鋼製型枠を今だけの特別価格で販売中
会社名 担当者 届け先 電話番号等ないものはお見積り出来ません。
NSP鋼製型枠で作る図面をください

NSPの基礎鋼製型枠を買ってくださったお客様にはパネル割り振り図面を時間があればおつくりします。
NSP基礎鋼製型枠の割り振り図面


 NSP基礎鋼製型枠パネルと組み立てとパネルの脱枠
型枠は1820で軽量ですので現場で早く動けて疲れません。
型枠は耐久性に優れた特殊亜鉛鋼鈑製で連結Uピンを内蔵していますのでパネルどうしの連結が容易です。
NSP基礎鋼製型枠の脱枠はUピンを押し上げるだけで簡単にできます。
           NSP基礎鋼製型枠

NSP基礎鋼製型枠の単価
セットでお買い上げの場合は格安で販売いたします。 部品での販売も単価によってセット買いと同じ仕切りで販売致します見積もりを致しますのでそれでよかったらお買い上げ下さい。

 
NSP基礎鋼製型枠の買い方
基礎図面があればお見積りいたします。
単品の部品見積もり依頼でもお見積りできます。
見積書の銀行に御入金ください、御入金確認後出荷の手続を致します。
            
     

お見積の場合納入先の住所が必ず必要です。

NSP基礎鋼製型枠の基本的な図面 NSPならあらゆるサイズに対応可能
NSP基礎鋼製型枠の標準図面
  
NSPの単価について
メーカーさんから指示があり単価を出さないように致しました実在店のため近隣へ配慮のためです、単価は別見積りであればどんなに安い見積であってもいいとのことです。ですので鋼製型枠や吊巾止金具など全て見積り販売と致します
     

NSP基礎鋼製型枠販売の店長の挨拶
   NSP基礎鋼製型枠の店長でございます。実在店50年の経験から皆様にしっかりと貢献したいと想いこのサイトを立ち上げました。この型枠は他社の物と比べて軽量ですが耐久性もあります。見積は無料ですが お届け先の住所 会社名 直接連絡の取れる電話番号を必ずお願いいたします。
NSPの鋼製型枠の消耗品の巾止めやNSP天端レベリングの販売を開始いたしますのでお見積致します。販売範囲は全国です。離島の場合はあらかじめ教えてください。

   

NSP基礎鋼製型枠の巾止め金具 3ケース以上で送料無料
      吊巾止金具特別価格(45ミリ用)
 品名・規格・寸法  数量  単位  標準定価  販売価格
 BS-120 吊巾止金具(200入り)  1  束  10,060  
 BS-135 吊巾止金具(200入り)  1  束  17,290  
 BS-150 吊巾止金具(200入り)  1  束  16,350  
 BS-160 吊巾止金具(200入り)   1  束  22,950   

      吊巾止金具特別金具(50ミリ用)
 品名・規格・寸法   数量   単位   標準定価  販売価格
KRBS-120 吊巾止金具(200入り)  1  束  10,060  
KRBS-135 吊巾止金具(200入り)  1  束  17,290  
KRBS-150 巾止金具(200入り)  1  束  16,350  


床鉄筋の製作御見積いたしますNSP鋼製型枠の詳細



メールでお問い合わせの方は、届け先の住所と4T車OKかの確認もお願いいたします
図面での見積の場合鮮明なものを郵送願います。
     
NSPの基礎鋼製型枠を使う場合の鉄筋配置図面を下されば、床鉄筋のお見積りは買ってくださいました人のみ可能です
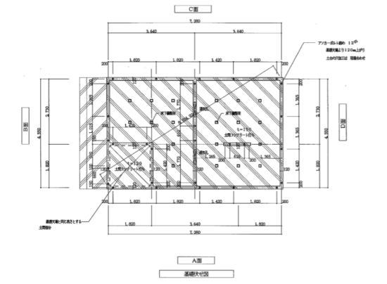
NSP基礎控訴型枠で基礎を作る場合基礎図面

NSP基礎控訴型枠で基礎を作る場合の鉄筋の曲げ図面
NSP基礎控訴型枠で基礎を作る場合の鉄筋の曲げ図面

NSP基礎控訴型枠で基礎を作る場合の鉄筋の曲げ図面
NSP基礎控訴型枠で基礎を作る場合の鉄筋の曲げ図面

NSP基礎控訴型枠で基礎を作る場合の鉄筋の曲げ図面
NSP基礎控訴型枠で基礎を作る場合の鉄筋の曲げ図面